Получите полную презентацию поселка

Дом в аренду, 308 м2

Цена: 270 000 руб.
Код объекта: 131-051

Авторский дом в стиле шале в аренду на лесном участке 40 соток. Интерьер оформлен с использованием итальянских отделочных материалов, натурального травертина и мебели из Италии, в том числе эксклюзивной. В санузлах - сантехника Villeroy&Boch, в котельной – медная разводка, установлен автоматический резервный генератор. Функциональная планировка включает в себя 6 спален, 2 из которых на первом этаже. К дому пристроена просторная терраса с зоной гриля-барбекю и качелями в стилистике дома. На большом приватном участке множество взрослых лесных деревьев. Обжитой КП Лесное озеро со строгой охраной и центральными коммуникациями.

Общая площадь строений: 308 м2
Год постройки дома: 2006 (отделка в 2010 г.)
Количество уровней: 2
Спален: 6. С/узлов: 3. Комнат всего: 7.
Опции: машиномест крытых: 3; терраса; камин.
Материал стен: кирпич
Облицовка стен: цоколь облицован диким камнем. 1 этаж - декоративная штукатурка, 2 этаж - дерево
Стадия готовности: меблирован
1-ый этаж: крыльцо-терраса, тамбур 3 кв.м, холл 11 кв.м, гостиная-столовая 70 кв.м со вторым светом и камином облицованным травертином, кухня 23 кв.м с выходом на террасу 109 кв.м, коридор 6 кв.м, спальня 23 кв.м, спальня 16 кв.м, санузел 6 кв.м, постирочная - санузел 5 кв.м, котельная 7 кв.м
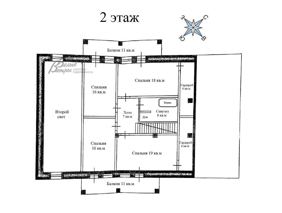
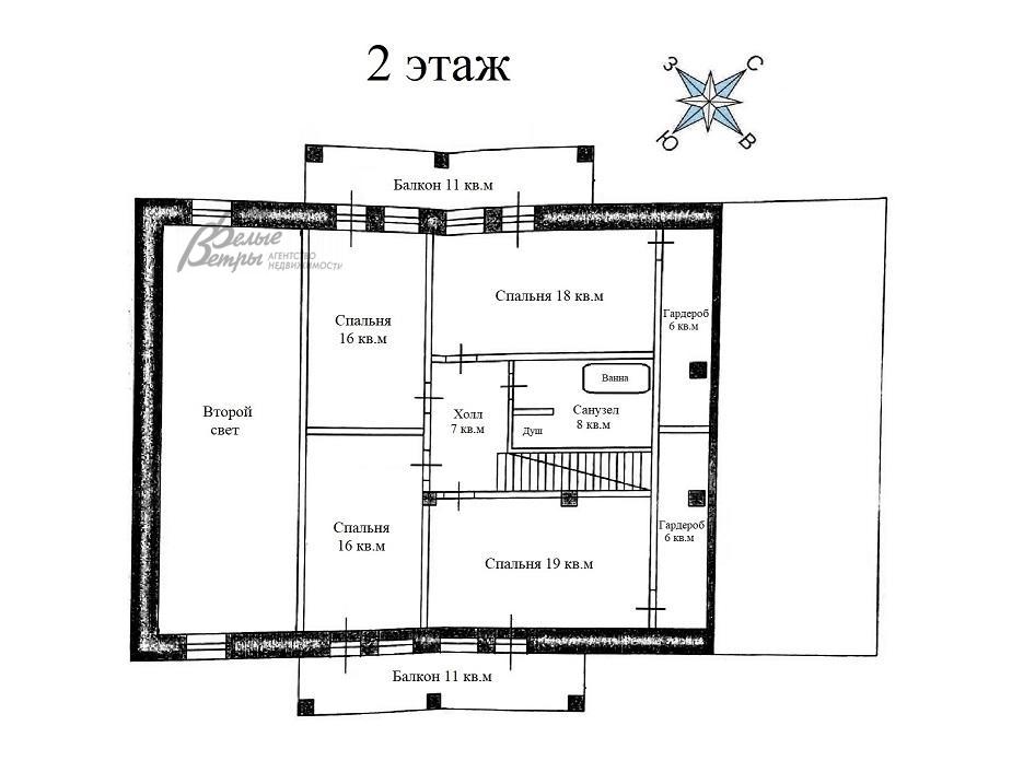
2-ой этаж: холл 7 кв.м, спальня 19 кв.м с гардеробной 6 кв.м и с выходом на балкон 11 кв.м, спальня 16 кв.м с выходом на балкон, спальня 16 кв.м с выходом на балкон 11 кв.м, спальня 18 кв.м с гардеробной 6 кв.м и с выходом на балкон
Описание внутренней отделки: авторский проект, отделка и интерьер дома выполнены в итальянском стиле. Отделочные материалы привезены из Италии. Массивные балки под потолком, в отделке использован камень травертин. Стены - штукатурка, декоративные деревянные элементы, в с/у плитка. Пол - весь первый этаж и с/у - мозаика травертин с подогревом, в остальных помещениях - паркетная доска из массива дуба. Потолки - дерево, гипсокартон многоуровневый с встроенными элементами освещения. Лестничный марш - железобетонный, ступени отделаны натуральным камнем травертин, перила - художественная ковка. Двери - из массива дуба с дизайнерскими ручками "под старину"
Инженерное обеспечение: многоступенчатая система очистки воды "Kinetico". Естественно-приточная вентиляция. Установлены газовый котел "De Dietrich" 80 кВт и бойлер косвенного нагрева "De Dietrich" с медной разводкой. Оптоволокно. Автоматический резервный генератор
Мебель, оборудование: дом оснащен всей необходимой мебелью итальянского производства. В спальнях дорогие качественные гарнитуры с комодами, туалетными столиками и тумбами. В гостиной диванная группа (Италия), серванты, журнальные столики и прочие элементы интерьера от итальянских дизайнеров. В зоне столовой эксклюзивный обеденный стол и барная стойка со стульями итальянской фабрики "DOMIZIANI". Кухонный гарнитур производства Италия. Фасады - массив дерева (Вишня). Столешница из вулканического камня расписанная вручную на семейной мануфактуре "DOMIZIANI". Встроенная техника "Bosch": духовой шкаф, варочная панель, посудомоечная машина. Холодильник "Toshiba", микроволновая печь "Bork". В гостиной и одной из спален телевизоры "Panasonic", в гостиной телевизор с акустической системой. В постирочной - стиральная машина "Bosch". Есть пылесос, утюг. Во всех комнатах есть карнизы, дорогие качественные шторы. Дом оснащен разнообразными приборами освещения в виде потолочных люстр, настенных бра и встроенных светильников

Участок

Площадь участка, соток: 40
Тип участка: лесной
Благоустройство участка: естественный лесной участок, со взрослыми хвойными и лиственными деревьями (дубы, березы, осины). На террасе есть качели и гриль
Дополнительная информация об участке: участок огражден глухим деревянным забором на металлических столбах


Фото


Планировки